Hansebelt
Gewerbeflächen im Hansebelt
Hansebelt
Home
English
German
English
Home
Realestate
Factsheet
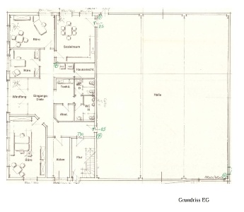
Lagerhalle mit Bürokomplex in Göhl, Kreis Ostholstein
Object type
Industry with office
Metadata
ID of this object
101421
Last modified at
26.02.2026 (08:20)
Last modified by
egoh_3
Created at
25.02.2026 (09:11)
Created by
egoh_3
Status
Publicly visible
Offer valid until
18.03.2026
Geographical location of real estate
Lage des Objektes
Municipality
Göhl
Address
Neukoppel
Zip code
23758
Location publicity
ZIP code, address, and point
Location
Commercial area
General characteristics
Year of construction
2001
Net floor space (m²)
900
Office area (m²)
250
Industry area (m²)
650
Number of floors
2
Number of parkings spaces
6
Prices
Marketing type
Rent
Rent without add costs
5,000
Rent deposit (text)
Drei Nettokaltmieten
All Prices in Euro.
Photographs
Contact
Contact person
Sebastian Boye
ENZIO Grundbestiz GmbH
Hackendohrredder 8
23684 Scharbeutz
boye@enzio-immobilien.de
PDF (German)
PDF (English)
Close Factsheet
Contact
Sebastian Boye
ENZIO Grundbestiz GmbH
Hackendohrredder 8
23684 Scharbeutz
boye@enzio-immobilien.de