Hansebelt
Gewerbeflächen im Hansebelt

Gewerbeflächen im Hansebelt

Diakonie Ostholstein gGmbH - Tagespflege, ehem St. Laurentius Kindergarten in Süsel, Kreis Ostholstein

Objektart
Büro und Praxis

Geografische Lage der Immobilie

Detail-Ansicht
Lage des Objektes
Stadt/Gemeinde
Süsel
Adresse
Bischof-Kieckbusch-Straße
PLZ
23701
Adresse öffentlich anzeigen
PLZ, Adresse und Punkt
Lage
Innenstadtlage
Lagebeschreibung
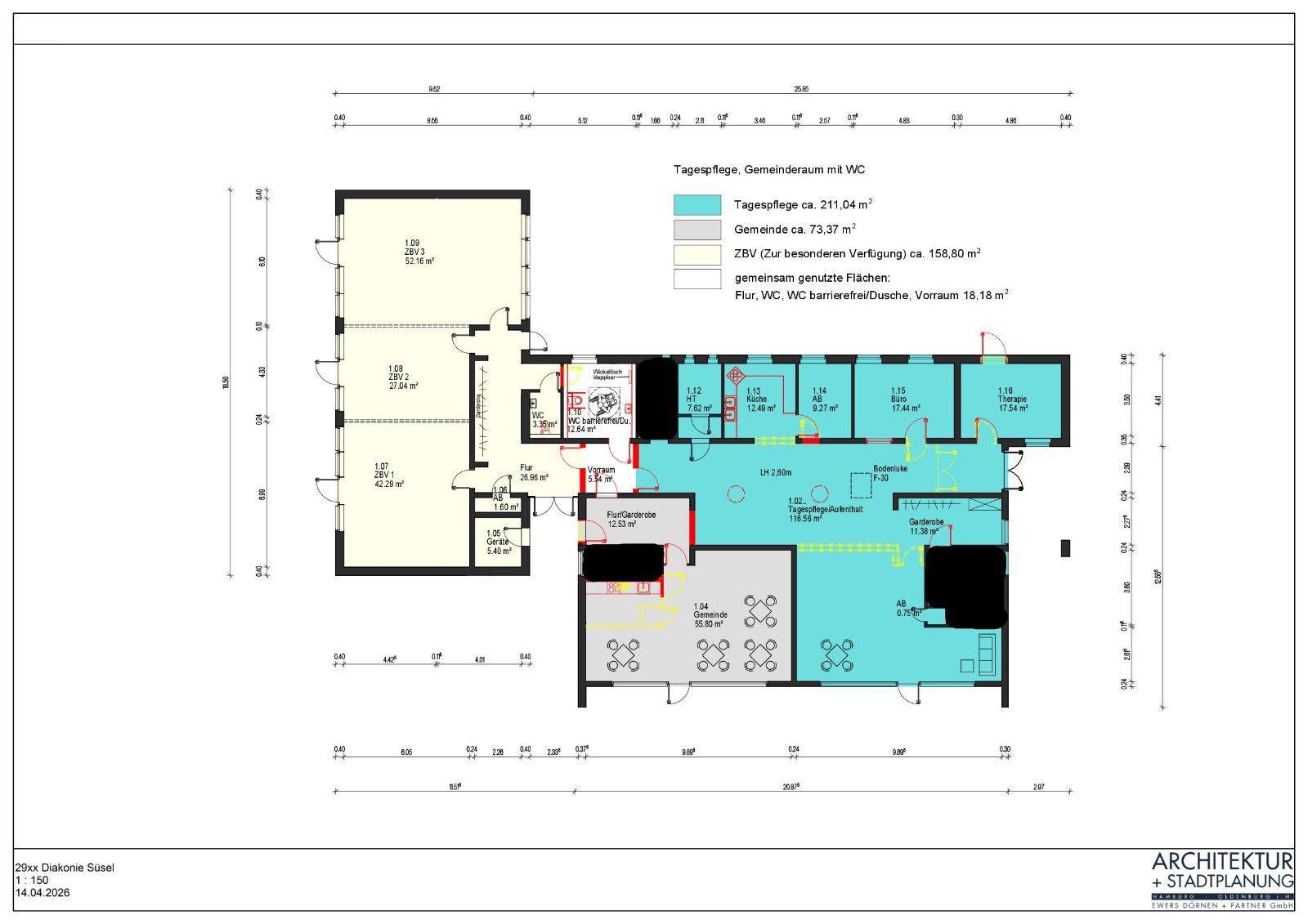
Bei dem in Rede stehenden Objekt handelt es sich um einen ehemaligen Kindergarten. Zukünftig wird es drei Nutzer geben: die Diakonie Ostholstein gGmbH mit einer Tagespflege, der Dorftreff Süsel e.V. und eben der noch offene Mieter. Die zentrale Lage des Objekts sowie die Nähe zum Rathaus und der Kirchengemeinde sind besonders hervorzuheben. Die zur Miete angebotenen Räume verfügen über einen eigenen Ein-/Ausgang in Richtung Bischof-Kieckbusch-Str. Dort befindet sich ein Parkstreifen.

Allgemeine Kenndaten

Verfügbarkeit
Sofort
Nutzungsmöglichkeiten
Büro, Praxis, Lieferdienste
Baujahr
1975
Nutzfläche (m²)
158,8
Bürofläche (m²)
121,49
Sonstige Fläche (m²)
37,31
Anzahl Geschosse
1
Anzahl Stellplätze
gem. Bedarf
Objektbeschreibung
Das eingeschossige Gebäude und der große Garten sind ein sog. "Hingucker" in zentraler Lage. Die zur Vermietung anstehenden Räume eignen sich in besonderer Weise für Dienstleistungen und Gewerbe.

Details und Ausstattung

Lastenaufzug vorhanden
nein
Personenaufzug vorhanden
nein
Heizungsart
Ölheizung - neue Heizungsanlage in Planung
Besondere Ausstattung
Raumgestaltung variabel

Sonstige Angaben

Deckenhöhe (m)
2,6
LKW-Befahrbarkeit
ja
Sonstige Angaben
Energetische Ertüchtigung des gesamten Gebäudes ist geplant. Eine flexible Raumgestaltung ist möglich.

Preise

Vermarktungsart
Miete
Kommentar zum Preis
VB

Alle Preise in Euro.

Fotos

Kontakt

Ansprechpartner
Hannes Wendroth
Diakonie Ostholstein gGmbH
Janusallee 1
23714 Bad Malente - Gremsmühlen
PDF (Deutsch) PDF (Englisch) Exposé schließen

Kontakt

Hannes Wendroth
Diakonie Ostholstein gGmbH
Janusallee 1
23714 Bad Malente - Gremsmühlen