Hansebelt
Gewerbeflächen im Hansebelt

Gewerbeflächen im Hansebelt

Büro- und Lagerfläche in Neustadt in Holstein, Kreis Ostholstein

Objektart
Industrie mit Büro

Metadaten

ID des Objektes
101016
Zuletzt geändert am
20.02.2026 (12:53)
Zuletzt geändert von
egoh_3
Erstellt am
05.01.2026 (09:05)
Erstellt von
egoh_3
Status
Öffentlich sichtbar
Angebot gültig bis
26.01.2026

Geografische Lage der Immobilie

Detail-Ansicht
Lage des Objektes
Stadt/Gemeinde
Neustadt in Holstein
Adresse
Sierksdorfer Straße 21
PLZ
23730
Adresse öffentlich anzeigen
PLZ, Adresse und Punkt
Lage
Gewerbegebiet
Lagebeschreibung
Das Objekt befindet sich in Neustadt in Holstein, einem wirtschaftsstarken Standort in Ostholstein. Dank der direkten Autobahnanbindung A1 erreichen Sie Lübeck, Hamburg und die Ostseeregion in kurzer Zeit. Auch die regionale Infrastruktur mit Geschäften, Gastronomie und Dienstleistungen ist hervorragend ausgeprägt.

Allgemeine Kenndaten

Verfügbarkeit
sofort
Nutzungsmöglichkeiten
Büro, Lager und Fertigung
Baujahr
1990
Nutzfläche (m²)
550
Grundstücksfläche (m²)
1.427
Bürofläche (m²)
308
Ladenfläche (m²)
212
Anzahl Geschosse
1
Anzahl Stellplätze
6
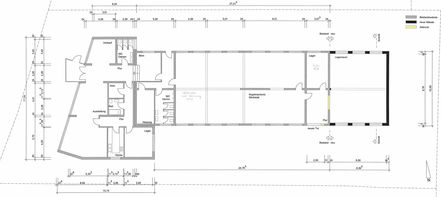
Objektbeschreibung
Zum Verkauf steht eine vielseitig nutzbare Gewerbeimmobilie in sehr guter Lage von Neustadt in Holstein. Das Objekt befindet sich in einem etablierten Gewerbegebiet mit optimaler Infrastruktur und direkter Anbindung an die Autobahn A1, wodurch eine hervorragende Erreichbarkeit für Kunden, Mitarbeiter und Logistik gewährleistet ist. Das Objekt wird frei von Mietverhältnissen geliefert. Die Immobilie umfasst ein Grundstück von ca. 1.427 m2, eine kombinierte Büro-, Lager- bzw. Produktionsfläche von insgesamt ca. 550 m2 und eine Garage von ca. 80 m2. Die Büroflächen bieten großzügige Raumaufteilungen und flexible Nutzungsmöglichkeiten ideal für Verwaltung, Dienstleistung oder kombinierte Arbeitsbereiche. Ergänzt wird das Angebot durch eine Lager- und Produktionsfläche, die für vielfältige betriebliche Zwecke geeignet ist. Ausstattung und Vorteile: Vielseitig nutzbare Büroflächen und Funktionale Lager-/Produktionsfläche Zahlreiche PKW- und LKW-Stellplätze direkt am Objekt Sehr gute Verkehrsanbindung über die A1 Attraktive Lage in einem dynamischen Gewerbeumfeld

Details und Ausstattung

Heizungsart
Elektro

Sonstige Angaben

LKW-Befahrbarkeit
ja

Preise

Vermarktungsart
Kauf
Kaufpreis (gesamt)
499.000
Kommentar zum Preis
Käuferprovision beträgt 3,57 % (inkl. MwSt.) des beurkundeten Kaufpreises
Provision
ja

Alle Preise in Euro.

Fotos

Kontakt

Ansprechpartner
Jessica Koppitz
Von Poll Immobilien
Brückstraße 26
23730 Neustadt in Holstein
PDF (Deutsch) PDF (Englisch) Exposé schließen

Kontakt

Jessica Koppitz
Von Poll Immobilien
Brückstraße 26
23730 Neustadt in Holstein